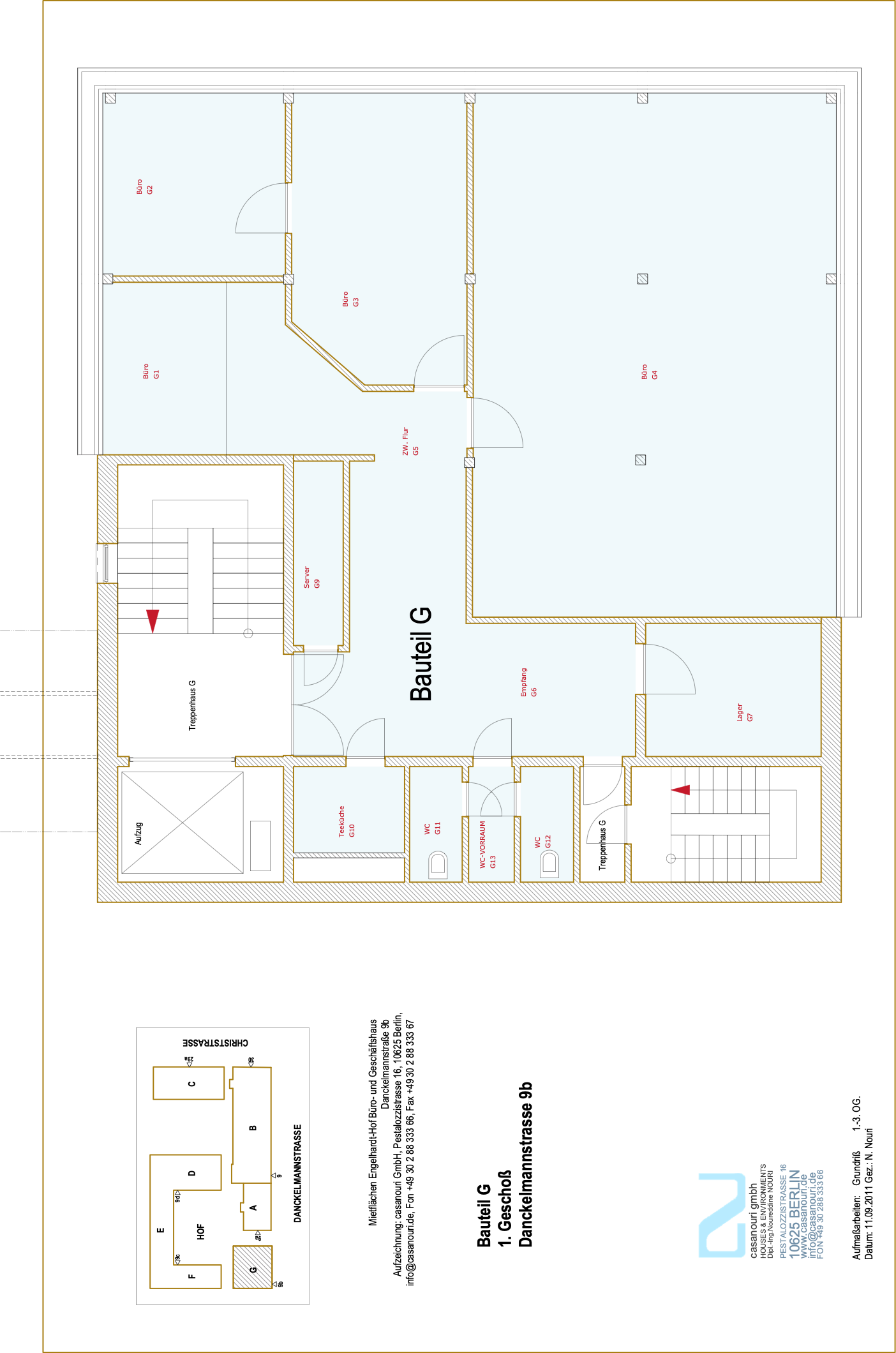
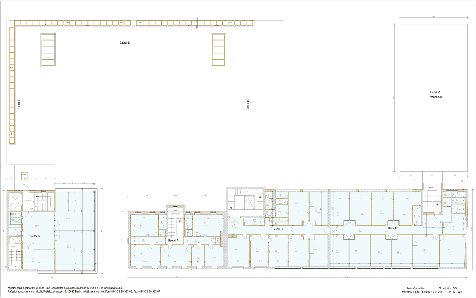
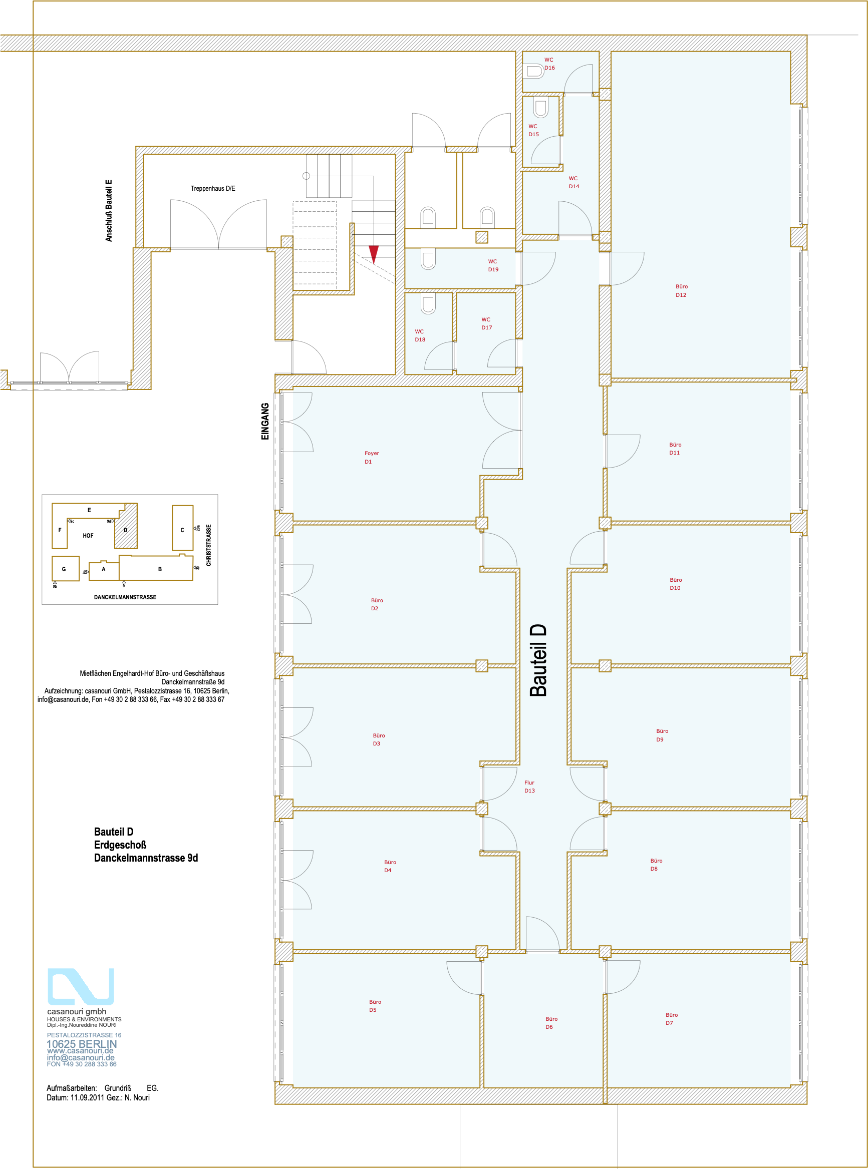
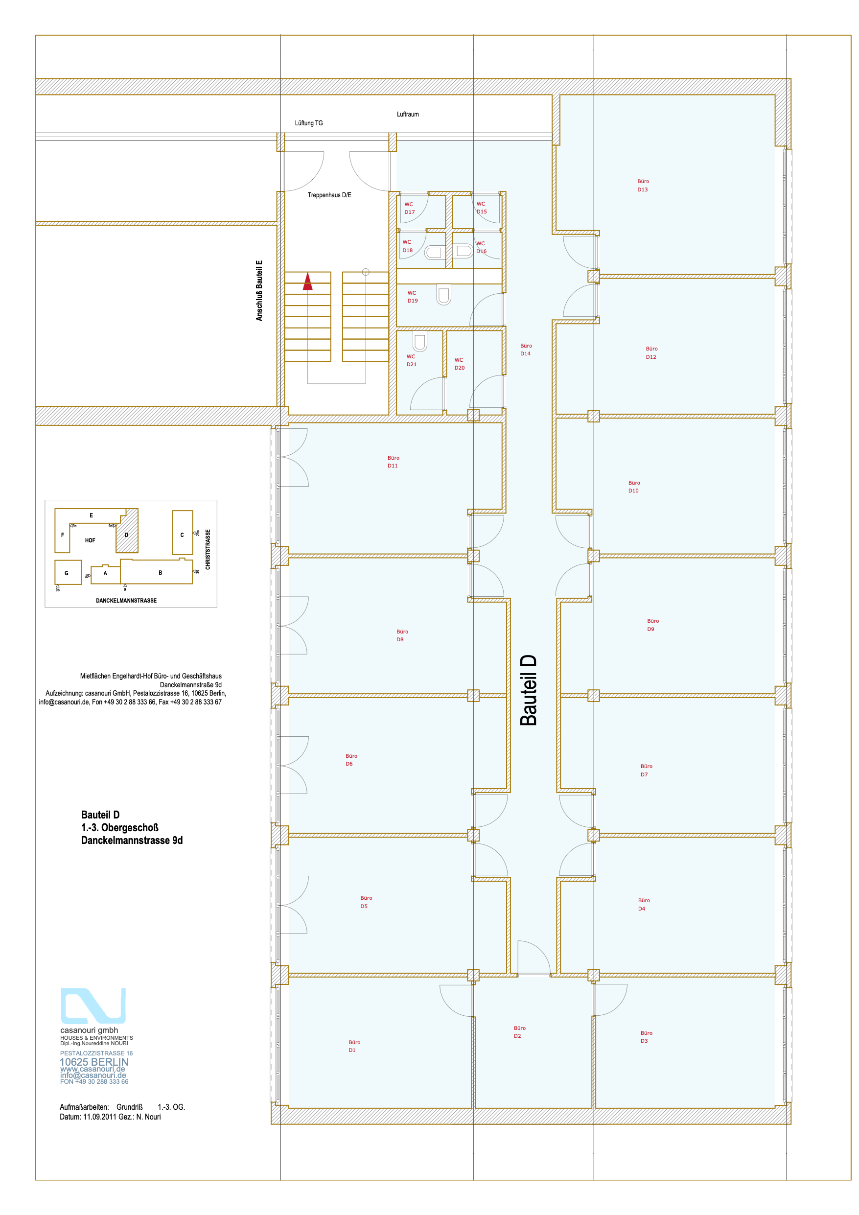
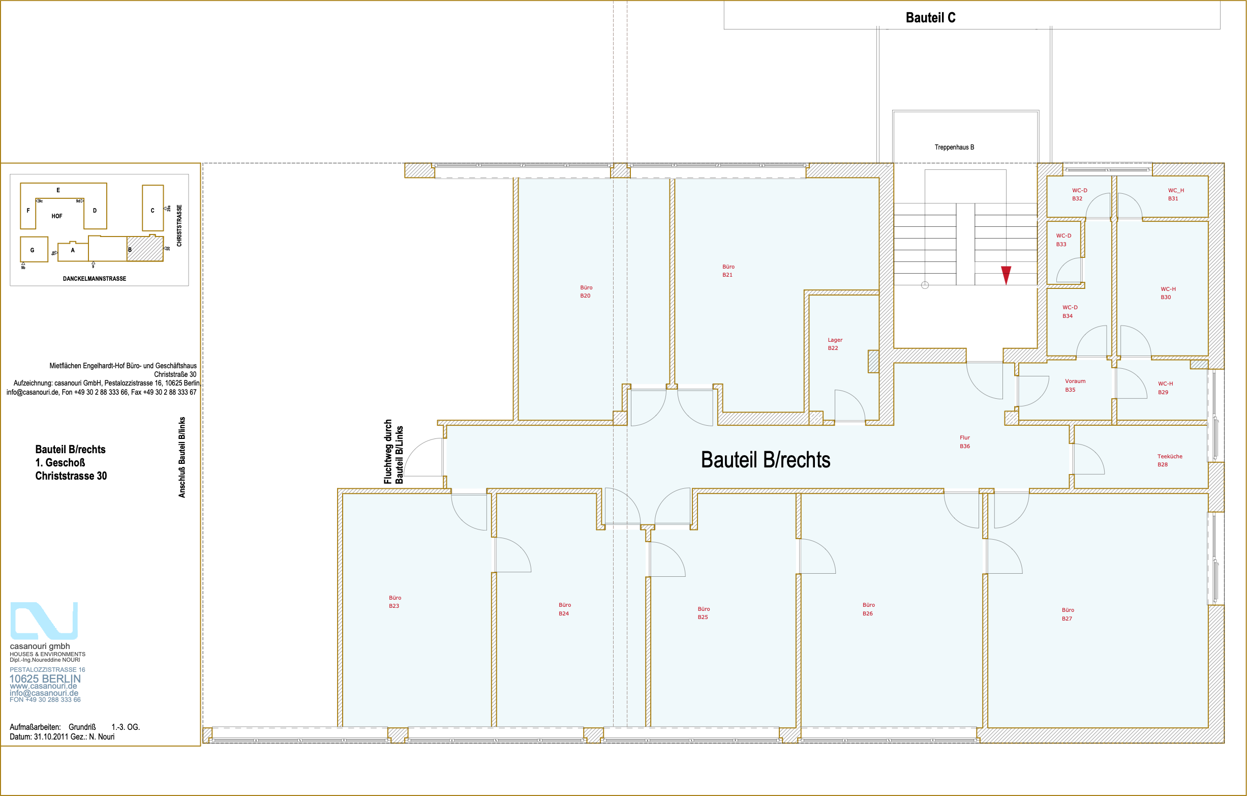
Building section: All A B C D E F G A – Ground floor Danckelmannstraße 9a Download (89.91 KB) A – 1st floor Danckelmannstraße 9a Download (85.63 KB) A – 2nd floor Danckelmannstraße 9a Download (85.63 KB) A – 3rd floor Danckelmannstraße 9a Download (85.63 KB) B – Ground floor left Danckelmannstraße 9 Download (91.8 KB) B – Ground floor right Danckelmannstraße 9 Download (105.25 KB) B – 1st floor left Danckelmannstraße 9 Download (94.13 KB) B – 1st floor right Christstraße 30 Download (102.12 KB) B – 2nd floor left Danckelmannstraße 9 Download (94.32 KB) B – 2nd floor right Christstraße 30 Download (99.55 KB) B – 3rd floor left Danckelmannstraße 9 Download (92.91 KB) B – 3rd floor right Christstraße 30 Download (69.84 KB) C – Ground Floor Christstraße 29a Download (79.69 KB) D – Ground floor Danckelmannstraße 9d Download (102.17 KB) D – 1st upper floor Danckelmannstraße 9d Download (97.6 KB) D – 2nd upper floor Danckelmannstraße 9d Download (97.6 KB) D – 3rd upper floor Danckelmannstraße 9d Download (97.6 KB) E – Ground floor Danckelmannstraße 9d Download (102.89 KB) E – 1st upper floor Danckelmannstraße 9d Download (93.67 KB) E – 2nd upper floor Danckelmannstraße 9d Download (93.67 KB) E – 3rd upper floor Danckelmannstraße 9d Download (93.67 KB) D E – 3rd upper floor Danckelmannstraße 9d Download (133.2 KB) F – Ground floor Danckelmannstraße 9d Download (91.37 KB) F – 1st upper floor Danckelmannstraße 9d Download (89.6 KB) F – 2nd upper floor Danckelmannstraße 9d Download (89.6 KB) F – 3rd upper floor Danckelmannstraße 9d Download (89.6 KB) G – Ground floor Danckelmannstraße 9b Download (86.4 KB) G – 1st floor Danckelmannstraße 9b Download (86.18 KB) G – 2nd floor Danckelmannstraße 9b Download (84.56 KB) G – 3rd floor Danckelmannstraße 9b Download (84.97 KB) A B D E F G – Entire overview 1st–3rd upper floor A B G – Entire overview 4th upper floor G – 4th floor Danckelmannstraße 9b Download (85.93 KB)